Project background

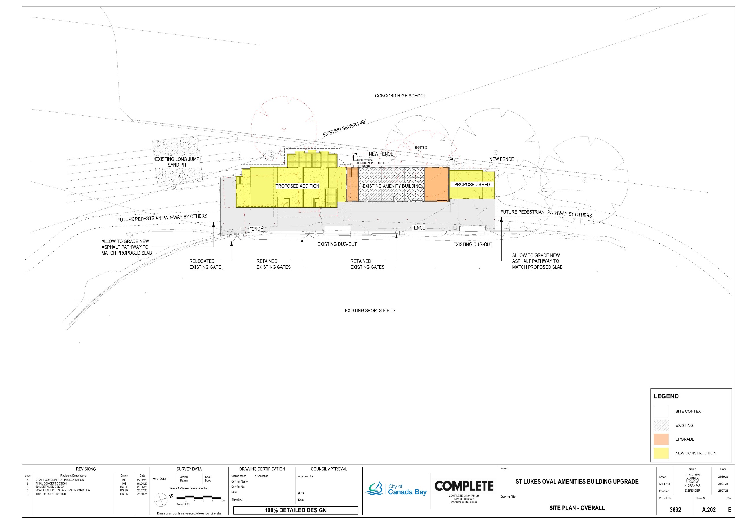
We are upgrading the Amenities Building at St Lukes Oval, Concord, as part of our ongoing commitment to improving local infrastructure and facilities.

The project includes:

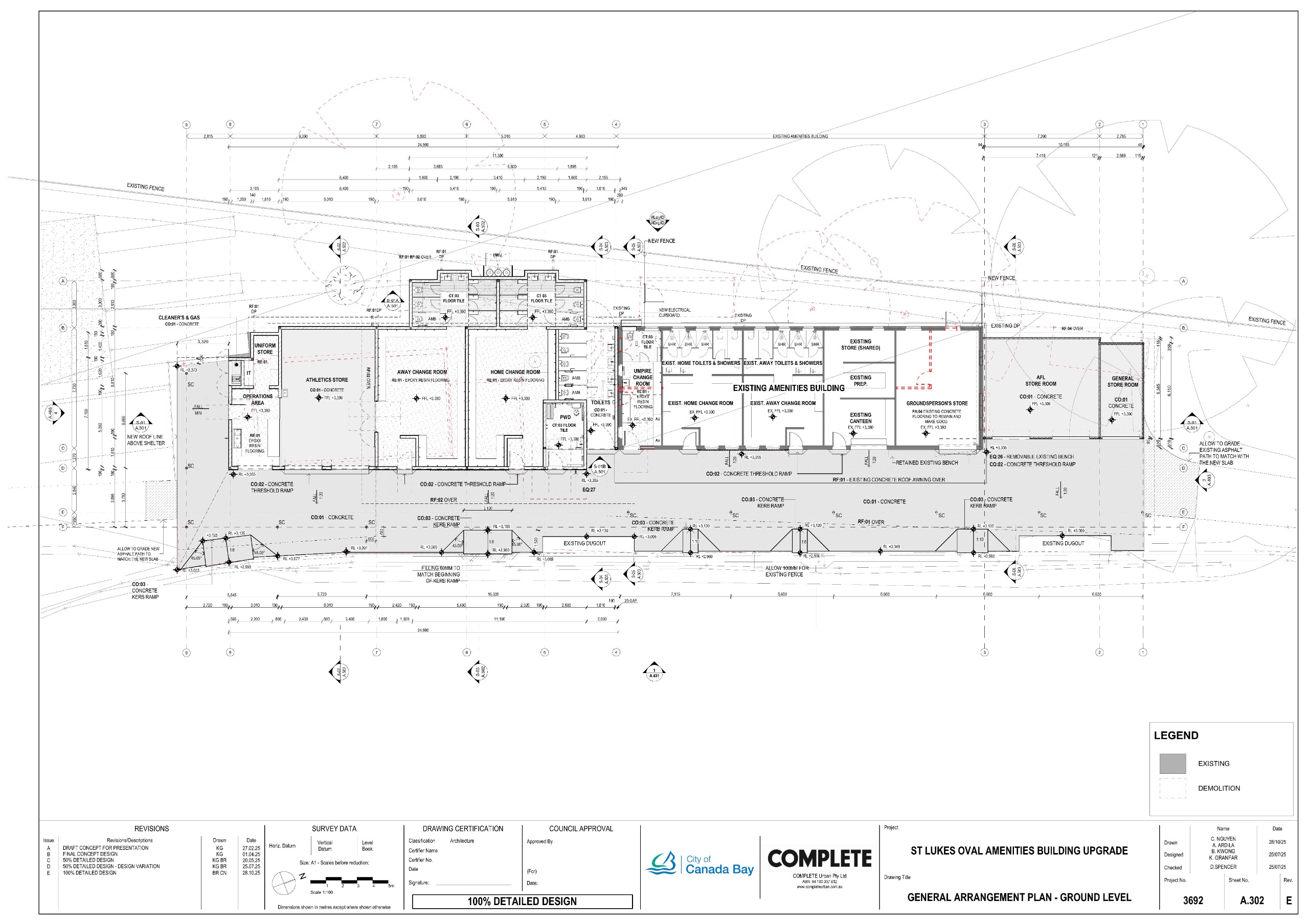
  • Construction of an extension to the existing amenities building, providing a new operations area, storeroom, home and away change rooms, public toilets, and an accessible public toilet.
  • Laying of new pavement and installation of a roof extension.
  • Construction of a new storage shed, and more.

This project is proudly funded by the Federal Government and AFL NSW in association with the City of Canada Bay Council.

Project Floor Plans